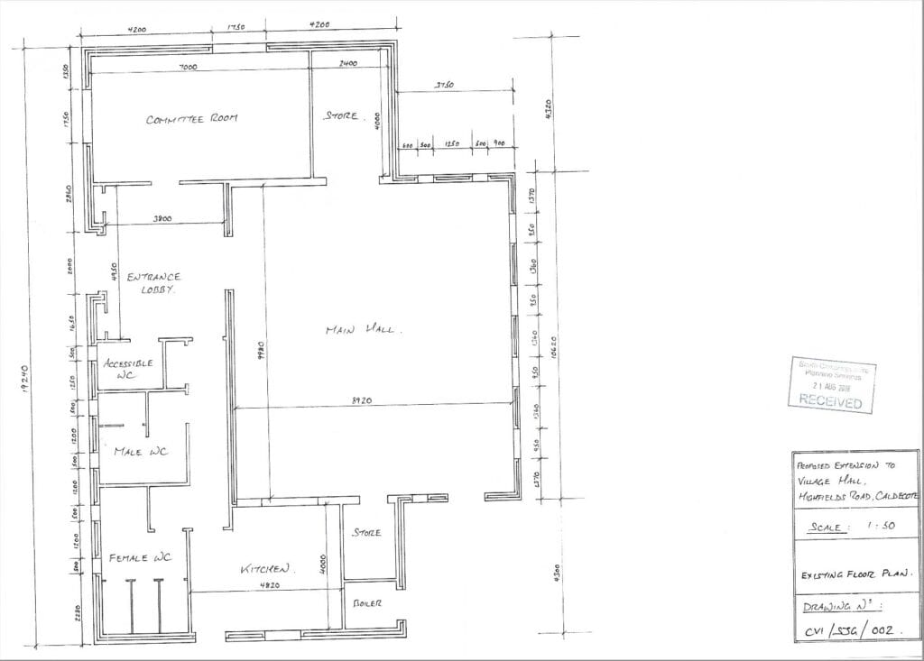
Floorplan

Caldecote Village Hall

View Our Room Dimensions & Layout

To help you plan your event with confidence, our floorplan shows the layout and dimensions of the Main Hall, Meeting Room, kitchen, and adjoining facilities. Whether you’re arranging seating, setting up equipment, or visualising the flow of your event, the floorplan provides a clear overview of how the space can work for you.